This vacant building plot has Planning Permission for a four bedroomed detached home and is situated in a sought after residential area backing onto playing fields and within easy reach of shops, schools and access to the M53 mid-Wirral Motorway. Planning Permission was granted in 2020 for a two storey dwelling and a Reserved Matters Notice approved in 2021. Works were started on the site which we are told implemented this permission. The Planning Application was OUT/20/01334 and plans and drawings can be examined on both the auctioneer's and Council's website.

Details

Auction Date 13th May 2026
Lot Number 6
Guide Price £100,000 to £120,000
Status Available
Lot Type Vacant Land
Address Land Between 32/34 Argyll Avenue, Eastham, CH62 8ED view on map
Tenure Freehold
Viewing The site is open for inspection.

Location

Accommodation

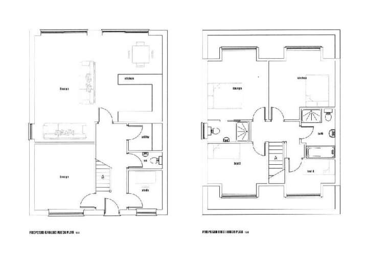
Accommodation The plans provided show the accommodation to comprise:
Ground Floor Entrance hall with WC and utility room, lounge, study, living room and kitchen.
First Floor Landing, four bedrooms, family bathroom with bath and walk in shower, en-suite shower room.
Externally There are front and rear gardens with provision for on-site parking.

Legal Pack

Your Name

Please enter your full name.

Please enter your email so we can get in touch.

Floor plans

There are no floorplan downloads for this property.

Back to Properties

Natwest
Rbs
Hsbc
Handesbanken
Vas
Shawbrook
Method
Magenta